Narrow-Block House Designs
Narrow lots are becoming increasingly popular in Perth – and it’s easy to see why.rnrnFor creative designs that maximise space and help buyers build in their dream location, you can’t beat a narrow-lot home. They offer great lifestyle flexibility and affordability, whether you extend upwards or focus on the one level.rnrnAt Residential Attitudes, we’re leading the way in Perth with our innovative designs for narrow blocks ranging from 6 to 12.5 metres wide. Our approach will change the way you think about narrow-block house designs, proving that style and space aren’t limited by lot size. Our plans maximise every square metre of your block while still giving you that spacious master suite and designer kitchen you’ve always wanted.rnrnUse the handy filter below to discover your new narrow-lot house plans.
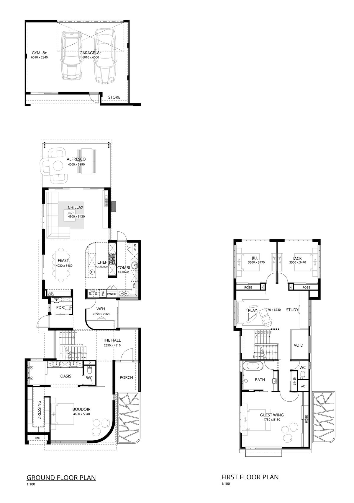
- Elevation
- Floorplan
Showing 1 - 30 of 46 designs
Enquire Now
Can’t Find the Perfect Fit for Your Narrow Block?
Whether it’s 6m, 8m, or uniquely shaped, we can tailor designs that maximises space, light and liveability without compromising style or flow. Let’s design a home that feels bold, not boxed in.
Narrow lot? No worries. Let’s chat.
FREQUENTLY ASKED QUESTIONS ABOUT NARROW LOT HOMES
Do narrow block homes hold their value?
Well-designed narrow block homes in good locations often hold their value as well as, or better than, larger homes, especially as land availability tightens in Perth. Good design and functionality are key.
Do you handle council approvals for narrow block homes?
Yes. We take care of all required council applications and approvals, including compliance with Perth’s Residential Design Codes. Our experience with narrow block planning helps streamline the process.
What’s the process for designing a narrow lot home?
We begin with a site assessment to understand your block and local council codes. Then we collaborate with you on layout and style, provide 3D previews of your chosen narrow lot house plan, and guide you through approvals and construction.
Can I customise your narrow block designs?
Yes, we offer both off-the-shelf designs and custom solutions. You can tweak the layout, finishes, or features to suit your lifestyle, and our team can walk you through it every step of the way.
Do narrow homes compromise on storage?
Not at all. From under-stair cabinetry to custom wardrobes and smart kitchen layouts, our designs build storage in from the start, so your narrow block home stays clean, organised and comfortable to live in.
How do you make narrow homes feel spacious?
We use design techniques like high ceilings, internal courtyards, large windows, neutral colours and built-in storage to make your home feel bigger than it is. It’s about clever volume, not just square metres.
Do narrow lot house designs include outdoor space?
Yes, and making the most of outdoor space is one of our specialties. Many of our homes feature internal courtyards, rear alfrescos, indoor-outdoor entertainment areas, and balcony zones, all designed to suit Perth’s outdoor lifestyle.
Can narrow homes include a study or home office?
Absolutely. Many of our narrow block designs include a dedicated study, home office or flexible living space that can easily adapt to working from home, a must-have for modern lifestyles.
Are there narrow block house designs for 7m or 8m wide blocks?
Yes. While our standard range starts at 6m, we have designs that suit blocks around 8m wide too. These homes use smart layouts to deliver open living areas, natural light and great flow — even on compact lots. If you don’t know where to start, get in touch with us! We can work with you to accommodate lot widths from 6m.
Is a double-storey home possible on a 10m narrow block?
Yes, in fact, many clients choose a double-storey layout for 10m blocks to maximise floor space. Bedrooms are typically positioned upstairs with open-plan living and entertaining on the ground floor, allowing you to make the most of your outdoor area.
What are the best house designs for 10m wide blocks?
With 10m frontage, you have room for either a spacious single-storey or a functional double-storey home. Our designs, like El Camino and Interstellar, show how 10m wide homes can still include alfresco areas, home theatres and plenty of storage.
When are narrow lot homes a good idea?
Narrow homes make sense when you want to live in a well-located suburb, but the land size is compact, common in Perth’s inner areas. They’re ideal for downsizers, investors or anyone who wants smart, low-maintenance living without compromising on style.
What makes Residential Attitudes one of Perth’s leading narrow lot builders?
We specialise in homes that maximise space, natural light and liveability on compact lots. With a long list of design awards and decades of experience, we’ve built a reputation for bold, well-resolved narrow lot homes that feel anything but constrained.
What width block do your narrow designs suit?
Our narrow home designs are most commonly suited to block widths between 6 and 12.5 metres. Many Perth buyers come to us for 10m frontage house designs, which offer the flexibility of single or two-storey layouts while maintaining great flow and outdoor space.
Do I need a custom design for a narrow block?
Not necessarily. We offer a wide range of narrow block house plans that cater to frontages from 6m to 12.5m. But if your site has unique challenges or you want something more tailored, we can create a custom design that works with your land and lifestyle.
Can I build to the boundary (zero lot line) in WA?
Yes, it’s possible to build right up to one boundary on many narrow lots under WA’s Residential Design Codes. This zero lot line approach can help maximise your home’s internal space. We’ll assess your site and local council guidelines early to determine what’s feasible.
Do narrow lot home designs cost more to build?
Not always. While narrow block designs can be more complex due to boundary considerations or double-storey layouts, the land is typically more affordable and the footprint smaller. We’ll walk you through the options and costs upfront so you can make informed choices that suit your budget.
What are the key considerations when building on a small block?
Building on a small or narrow block means thinking carefully about things like council regulations, access, privacy, and how light will move through the home. We help you make the most of every square metre, whether it’s a corner block, a rear strata lot, or a compact site.
What is considered a narrow lot in Perth?
In Perth, a narrow lot is generally any residential block with a frontage of 10 metres or less. At Residential Attitudes, our narrow lot home designs begin at 7.5m wide, which allows for smarter layouts and more liveable spaces without compromising on light, flow or function.


