Erskine
Exclusive opportunity to embrace the Estuary lifestyle! Single Storey House and Land package available with reputable builder
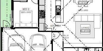
- 3
- 2
- 2
Address Lot 3 Marina Quay Drive, Erskine, WA 6210
Price From $685,000
Single Storey House and Land package available with reputable builder.














