Maddington
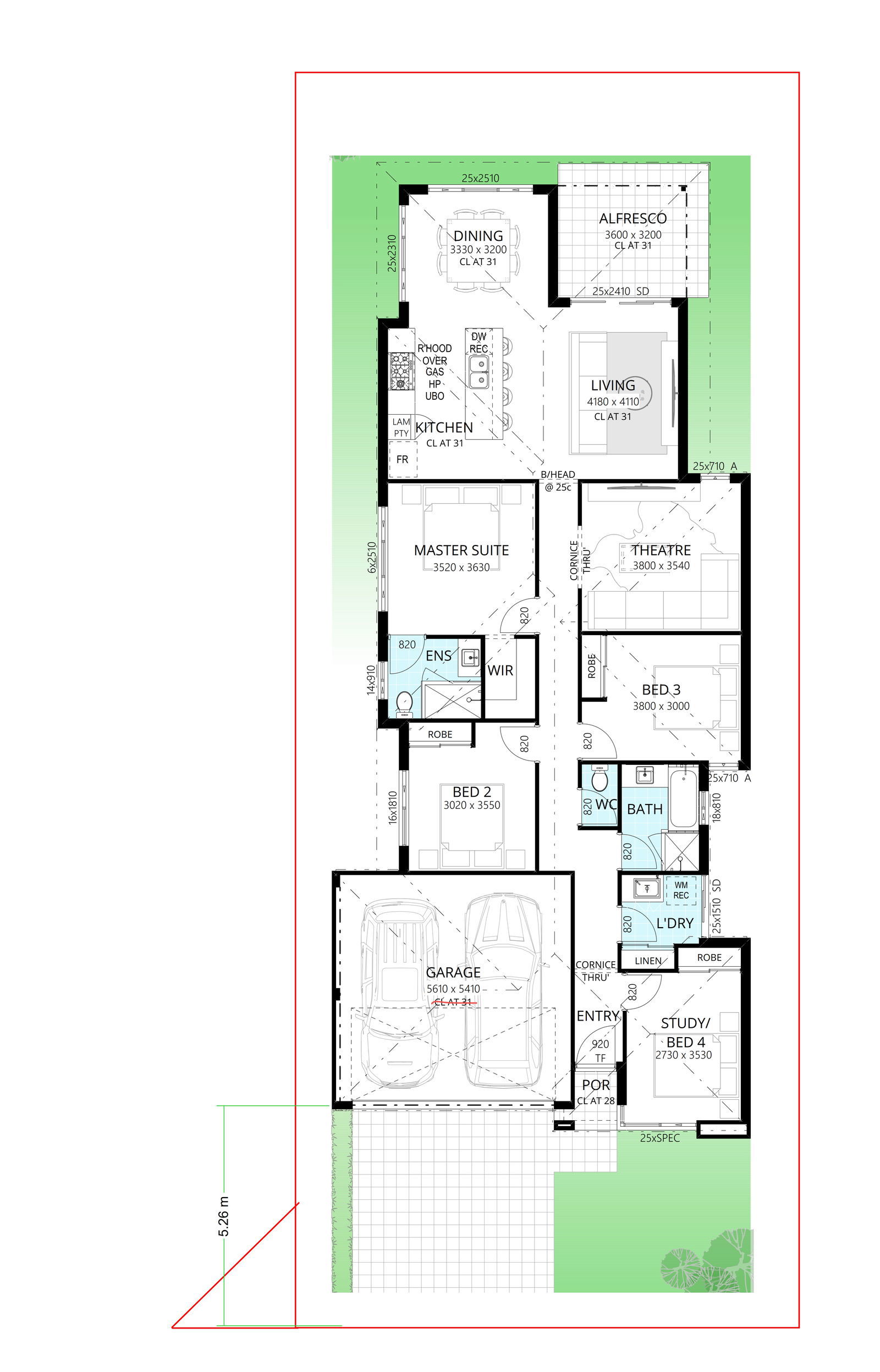
RARE** 365 SQM STREET FRONT HOME AND LAND PACKAGE IN MADDINGTON!
- 4
- 2
- 2
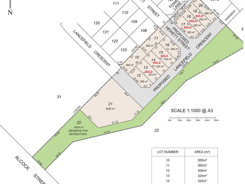
Address Lot 11 Lancefield Crescent, Maddington, WA 6109
Price TURNKEY $779,000 PRIME LOCATION
Take advantage of the Government 5% Deposit Scheme and secure this amazing new home and land package on lancefield Crescent, Maddington!!!
Perfect for first home buyers, investors, or families seeking style, comfort, and convenience in a growing, family-friendly location.
Prime Location Highlights:
-
Close to schools, shops, parks, and public transport
-
Easy access to Tonkin Hwy and Maddington Central
-
Peaceful, established community
If you would like to take the next step on BUILDING this brand new home in Maddington then please contact:
BOO MATTHEWS – CALL / SMS / E-MAIL !









